
4 April 2026
process & updates

Written by:
Jonathan Elmore
Non-Profit Help
Here in the River Valley, we're fortunate to be surrounded by organizations doing real good in the community — food pantries, shelters, after-school programs, faith communities, and so many others running on tight budgets and big hearts. At Design Intelligence Studio, we believe good design shouldn't be reserved only for clients with deep pockets. That's why we make it a point to work with non-profits right here in the River Valley.
If you're a non-profit in the Fort Smith area, let's talk about what we can do for you — at a fee that actually works for your organization.
Flexible Fees for Non-Profit Organizations
We know that most non-profits are working with limited resources, and the last thing you need is a design firm that treats your project like any other commercial job. We don't. When you reach out to us, we'll have an honest conversation about your budget and come up with a fee structure that fits your capabilities. Giving back to this community matters to us — it's that simple.
What We Can Help With
Documenting Your Existing Space
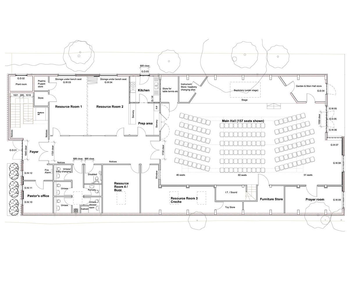
A lot of non-profits we talk to have been operating in their space for years without ever having a proper set of floor plans. Maybe the original drawings were lost, or the building was handed down or donated. Whatever the case, our team can work from whatever you already have — old drawings, photos, or nothing at all. We'll take field measurements and put together a clean, documented set of plans for your existing space. This is incredibly useful for grant applications, insurance purposes, or just finally knowing what you're working with.
Small Construction Sets for Updates
Maybe you need to reconfigure a room to serve more people. Maybe you're finally adding that accessible restroom or updating a kitchen. Whatever the scope, we can put together a construction drawing set tailored to your specific needs — not a one-size-fits-all package, but something built around your project and your budget.
Serving the Fort Smith, Arkansas Community
Design Intelligence Studio is based right here in Fort Smith, AR. We understand the River Valley — its neighborhoods, its growth, and its people. Whether you're located in downtown Fort Smith, Greenwood, Van Buren, or anywhere in the surrounding area, we'd love the opportunity to support the work you're doing.
Non-profit or not, great design helps organizations function better, serve more people, and make a stronger impression on the donors and volunteers who walk through the door.
Ready to Talk?
If you're a non-profit in Fort Smith or the surrounding area and you have a project in mind — big or small — reach out to us. There's no obligation, just a conversation about what you need and how we might be able to help.

Design Intelligence Studio is a full-service architectural design firm serving Fort Smith, Arkansas and the River Valley region. We specialize in design consultations, 3D architectural visualizations, construction drawing sets, and community-focused design work.



